Plánek a návod s postupem stavby rekreačního modelu říčního člunu Šumava zveřejnil časopis MODELÁŘ - 7/1990 na stranách 20 až 21, naleznete ve velkém rozlíšení v souborech PDF níže, včetně zapojení původní elektroniky regulátoru.
Autorem je Jaroslav Kokoška.
Citace kompletního původního návodu je níže:
"V loňském roce zaujal mého patnáctiletého syna v suchém doku na Lipenské přehradě člun Šumava. Loď vyfotografoval, změřil a postavil její rádiem řízený model. Výsledek předčil naše očekávání: Model vypadá na hladině velmi realisticky a jízda s ním je příjemná.
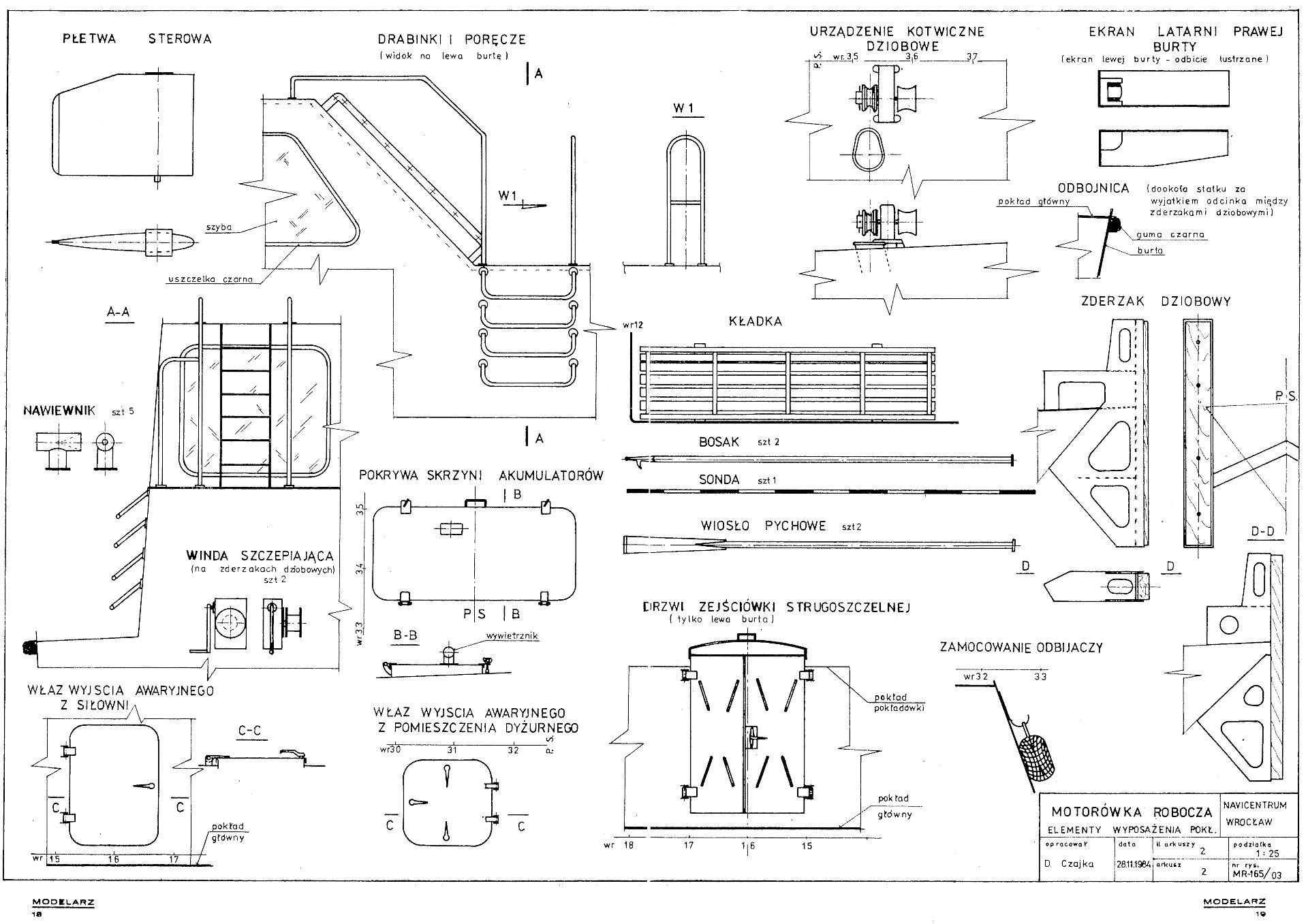
Trup modelu je šarpiové konstrukce. Jeho základem je kýl 8 a žebra 0 až 7 z překližky tl. 3 mm. Žebra spojíme lištami o průřezu 4x4 mm (řez A—A) a dno plaňkujeme lištami 2x5 mm. Při plaňkování dna nejprve navlhčené lišty připevníme k žebrům 0 až 3 modelářskými špendlíky, necháme řádně proschnout a teprve potom je přilepíme. Boky trupu polepíme překližkou ti. 0,8 mm a příď až po žebro 7 vybrousíme z balsového hranolu.
Trup i nástavbu lepime Kanagomem. Vnitřek trupu natřeme dvousložkovým emailem Epolex. Povrch trupu vytmelime a pečlivě přebrousíme.
Palubu plaňkujeme z lišt o průřezu 2x5 mm. Ponecháme v ní pouze otvory 10 a 11. První otvor umožňuje přístup ke kormidelní páce, druhý zabudování pohonné jednotky 12, ovládacího mechanismu 13, serv 14, přijímače 15 a baterií 16. Otvor 10 zakryjeme víkem, otvor 11 je lemován lištami, které slouží k ustavení nástavby 17.
Nástavbu zhotovíme z překližky ti. 1 mm, okna zalepime čirou fólií. Dveře, poklopy a další doplňky vyřežeme z překližky tl. 2 až 2,5 mm, nebo slepíme ze smrkových lišt o průřezu 4x4 mm. Jeřáb, slepeny z překližky tl. 1 mm, slouží zároveň jako nosič antény přijímače. Záleží jen na vyspělosti každého modeláře, jak věrně se bude při sestavování jeřábu držet vzhledu předlohy.
Totéž platí i o zhotovení různých detailů, viditelných na fotografii předlohy.
Zábradlí, žebříky a madia vytvarujeme a spájíme z drátu
o průměru 1 mm a vsadíme je do otvorů vyvrtaných v palubě a nástavbě.
Základem pohonné jednotky prototypu je plochý motor Igla 12, který pohání třílistou vrtuli Igra o průměru 30 mm. Lodní hřídel o průměru 3 mm je uložen v ložiskové komoře 18, sestavené z trubek vhodného průměru. Zdrojem proudu jsou dvě sériově zapojené ploché baterie 4,5 V. Regulátor otáček motoru 19 byl zhotoven podle návodu z MO 9/89.
Polotovar kormidla slepíme ze tří vrstev překližky tl. 2 mm a obrousíme do požadovaného tvaru. Hřídel kormidia zhotovíme z drátu o průměru 2,5 mm, ovládací mechanismus je sestaven z páky a táhla Modela. Spodní úchyt kormidla 20 vypilujeme z plechu ti. 1,5 mm a přilepíme ke kýlu Lepoxem. RC soupravou jsou ovládány otáčky motoru, kormidlo a jízda vpřed a vzad.
Zbarvení: Předloha měla trup natřený zelenou barvou, nástavbu v barvě slonové kosti. Palubu ponecháme v barvě použitého materiálu, pouze ji přetřeme čirým lakem. Kotva, poklopy, základová deska jeřábu, vazáky a kryty pozičních světel jsou matně černé, houkačka a světlomety stříbrné. Rameno jeřábu je žluté, dveře a lavice tmavě hnědé, boční nízké dveře červené, záchranný kruh oranžový, kryty 21 zelené a 22 modré. Nápisy zhotovíme z Propisotu a přetřeme čirým lakem.
Hlavní material (rozměry v mm):
Překližka
tl. 0,8 — 200x700;
tl. 1 — 400x400;
tl. 3 — 150x700
Smrkové lišty dl. 1000
2x5 — 50 ks;
4x4 — 4 ks
Balsa tl. 10 — 50x400
Ocelový drat
Ø 0,4, dl. 600;
Ø 1, dl. 800;
Ø 2,5, dl. 100
Čirá fólie 100x150
Duralový plech tl. 0,8 — 100x300
Motor Igla 9 V plochý,
třílistá vrtule igra g 30 mm
Kanagom, Lepox, brusný tmel, brusný papír
Nátěrové hmoty:
Email dvousložkový Epolex S 2311 (bílý pololesklý),
tužidlo S 7300,
ředidlo S 6300,
syntetický email venkovní,
čirý lak,
souprava barev Unicol"